COMMERCIAL DESIGN

RESTAURANT/BAR MAKEOVER DESIGN
RESTAURANT/BAR DESIGN – CUSTOM DESGN & HAND PAINTED BISTRO TABLES
RESTAURANT/BAR RENDERING – CUSTOM BUILT-IN BAR
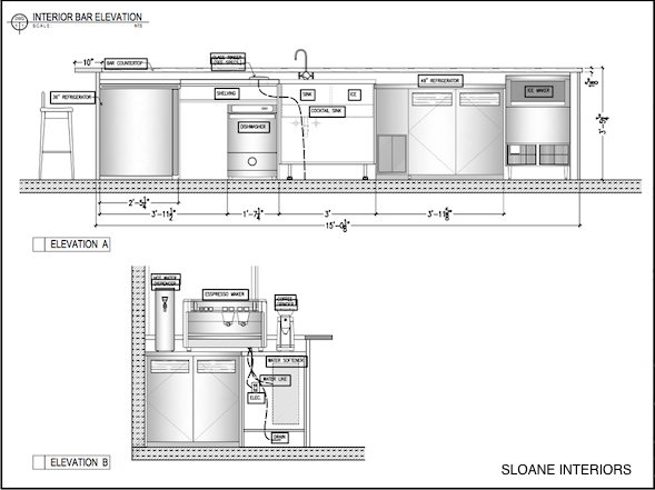
RESTAURANT/BAR DESIGN – AUTOCAD RENDERING OF CLIENT’S NEEDS & OUR VISION